Title
Mein Account
Einloggen
Kostenlos Registrieren
Merkliste
Meine Inserate
Meine Nachrichten
Mein Profil
Hilfe
  Gratis Inserat aufgeben
Deine Cookie-Einstellungen
Cookies – das sind kleine Textdateien, die auf deinem Endgerät abgelegt werden.Sie helfen dabei, unsere Website für Sie nutzungsfreundlich zu machen.Du kannst deine Auswahl jederzeit unter "Cookie-Einstellungen" bearbeiten am Seitenende ändern oder widerrufen.
Mehr Informationen finden Sie in unseren Datenschutzhinweisen.
Funktional
Erforderlich, damit Sie wichtige Seitenfunktionen nutzen können.
Statistik
Verbessert unser Angebot für Sie.
Marketing
Ermöglicht für Sie passende Informationen anzuzeigen.
  01*******
Nachricht
  Zurück
Keys
0/0
PhotoPhotoPhotoPhotoPhotoPhotoPhotoPhotoPhotoPhotoPhoto

Voll ausgestattet, sonnendurchflutet mit Blick auf die Elbe – Erstbezug nach Kernsanierung

2.450€
Verdächtiges Inserat melden
Zur Merkliste hinzufügen
Beschreibung

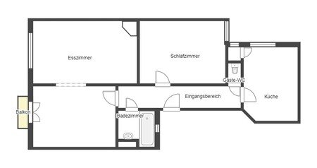
Diese traumhafte Altbauwohnung ist komplett ausgestattet.Die Gesamtmiete beinhaltet alle Nebenkosten, sofern nicht anders angegeben.Großzügige und helle 2-Zimmer Wohnung auf St. Pauli – 150 Meter entfernt vom Park Fiction mit seiner herrlichen Panoramasicht auf die Elbe.Die Wohnung liegt im 3. Stock eines umfassend renovierten Altbaus mit kleinem Balkon und unverbaubarem Elblick und einer Ausssicht ins Grüne von Wohn- und Esszimmer.Die Rennovierung der Wohnung wurde in diesem Jahr abgeschlossen – es handelt sich um den Erstbezug.Die Wohnfläche beträgt 73 qm. Sie besteht ausWohn- und Esszimmer mit altem Kachelofen, Schlafzimmer, Badezimmer und separatem WC und einer großzügigen Küche mit Abstellraum.Die gesamte Wohnung ist vollständig ausgestattet. Zur Verfügung stehen z.B. ein 50" Smart TV mit Satellitenanschluss und ein Schlafsofa.Die Küche ist ausgestattet mit Induktionsherd und Backofen sowie einem Dunstabzug, Spulmaschine und einem Kombigerät zum Waschen und Trocknen. Ess- und Kochgeschirr sowie diverse Kleingeräte werden zur Verfügung gestellt.Das Schlafzimmer hat ein Doppelbett (180x200).Folgende Wäsche wird zur Verfügung gestellt: Bettdecken, Bettwäsche, Handtücher und Kissen.Die möblierte Wohnung ist für maximal 2 Personen geeignet. Sie ist nicht geeignet für eine Wohngemeinschaft. Haustiere sind leider nicht erlaubt.Die Miete beinhaltet bereits folgende Kosten: Heizungs-/Gas-Pauschale, Wasser-Vorauszahlung, Strom-Vorauszahlung. Der Rundfunkbeitrag ist selbst zu zahlen.Ein Internetanschluss kann genutzt werden: WLAN / 100 Mbit.Eine regelmäßige Reinigung ist inklusive und findet 1 mal monatlich statt.

befristet- mindestens 6. Monate

Details
Art des Inserats
Angebot
Standort
Antonistraße
20359 Hamburg Neustadt
Inserat
Aufrufe
78
Beobachter
0
Erstellt am
21.10.2025
Inseratnummer
2548
  1. Treffen Sie den Verkäufer an einem öffentlichen Ort wie der U-Bahn, Einkaufszentren oder Tankstellen
  2. Nimm jemanden mit und du wirst jeden treffen
  3. Überprüfen Sie das Produkt vor dem Kauf gut und stellen Sie sicher, dass der Preis stimmt
  4. Zahlen oder überweisen Sie kein Geld, bis Sie das Produkt gut sehen
2.450€
Nachricht senden
Telefon: 01*******
Fiona K.
Privater Nutzer
Aktiv seit: 21.10.2025
Facebook
Twitter
Instagram