Title
Mein Account
Einloggen
Kostenlos Registrieren
Merkliste
Meine Inserate
Meine Nachrichten
Mein Profil
Hilfe
  Gratis Inserat aufgeben
Deine Cookie-Einstellungen
Cookies – das sind kleine Textdateien, die auf deinem Endgerät abgelegt werden.Sie helfen dabei, unsere Website für Sie nutzungsfreundlich zu machen.Du kannst deine Auswahl jederzeit unter "Cookie-Einstellungen" bearbeiten am Seitenende ändern oder widerrufen.
Mehr Informationen finden Sie in unseren Datenschutzhinweisen.
Funktional
Erforderlich, damit Sie wichtige Seitenfunktionen nutzen können.
Statistik
Verbessert unser Angebot für Sie.
Marketing
Ermöglicht für Sie passende Informationen anzuzeigen.
  +4*******
Nachricht
  Zurück
Keys
0/0
PhotoPhotoPhotoPhotoPhotoPhotoPhotoPhotoPhotoPhotoPhotoPhotoPhotoPhotoPhotoPhotoPhotoPhotoPhotoPhoto

Modernes energiesparendes Wohnen in Trier-Kürenz mit großzügigen Terrassen Trier 54295

555.800€
Verdächtiges Inserat melden
Zur Merkliste hinzufügen
Beschreibung

Modernes energiesparendes Wohnen in Trier-Kürenz mit großzügigen Terrassen
Trier- Stadtteil Kürenz - gefragter Wohnbereich zwischen Innenstadt und Universität. Die Wohnungen entstehen in einem modernen Mehrfamilienhaus in einer Nebenstraße, orientiert zum verkehrsberuhigten Innenbereich.
Alle Einrichtungen des täglichen Bedarfs erreichen Sie auf kurzen Wegen. Ebenso ist eine gute Verkehrsanbindung in alle Richtungen gegeben. Den Hauptbahnhof erreichen Sie in ca. 10 Gehminuten. Der neue Edekamarkt Schönbornstraße ist ebenfalls in wenigen Gehminuten erreichbar.
Moderne Eigentumswohnungen in altengerechter Ausführung im Energiesparhaus in Trier-Kürenz im verkehrsberuhigten Innenbereich .
In attraktiver Lage von Trier-Kürenz entstehen neue Eigentumswohnungen in altersgerechter Ausführung mit moderner Technik (KfW 55 Standard Erneuerbare Energien ), Aufzug und guter Ausstattung.In dieser exponierten Lage entstehen attraktive Eigentumswohnungen von ca. 63 bis ca. 130 m² mit moderner Technik in altersgerechter Ausführung. Es sind eine moderne Luftwärmepumpe, Fußbodenheizung, elektrische Rollläden, Aufzug, schöne Fliesen sowie attraktive Parkettböden vorgesehen. Sie können hier noch Ihre persönliche Note einbringen.
Die Errichtung erfolgt unter Berücksichtigung moderner Energiestandards (KFW-Effizienzhaus 55 Erneuerbare Energien) sowie einer guten Ausstattung. Die Kombination von moderner Technik und hochwertiger Isolierung führt zu sehr günstigen Heizkosten bzw. Nebenkosten.
Alle Wohnungen verfügen über schöne Balkone, Terrassen oder Dachterrassen.

Das Bauvorhaben wird durch einen Bausachverständigen vom TÜV während der gesamten Bauphase betreut Dieser führt gemeinsam mit den Käufern die Abnahme der jeweiligen Wohnung und des Gemeinschaftseigentums durch. Dies ist ein zusätzlicher Qualitätsbeweis.


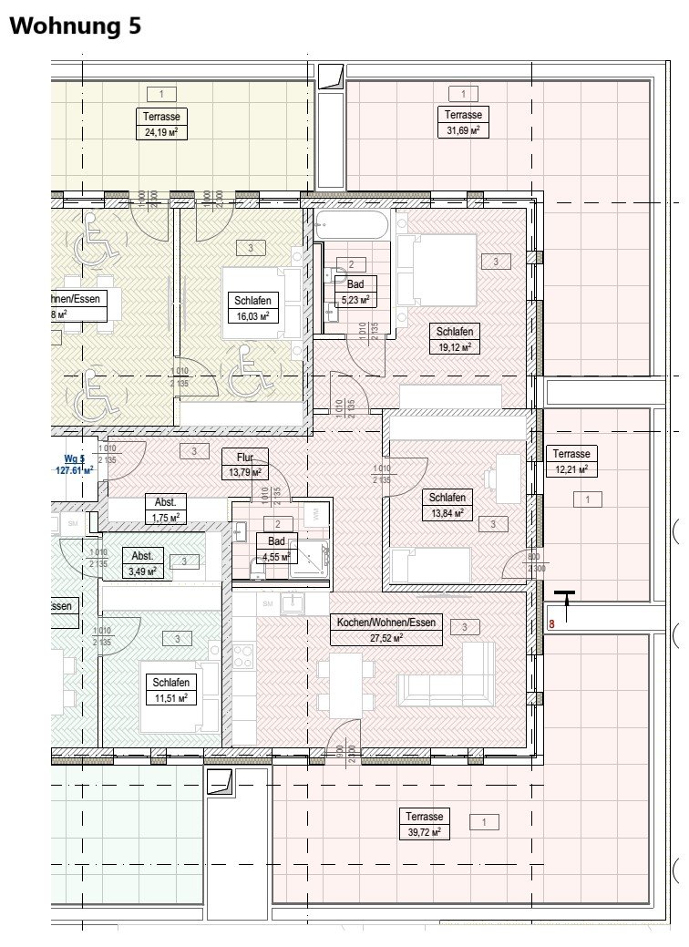
Das Angebot bezieht sich auf die Wohnung 5- Gebäude A im Erdgeschoß
Die Wohnung besteht aus dem hellen Wohn/Essbereich von ca. 27 m² mit integrierter Küche und Zugang auf die sonnigen Süd/Westterrasse von ca. 50 m². Dem große Schlafraum von ca. 19 m² wurde ein eigenes Bad mit Fenster zugeordnet. Er verfügt ebenfalls über den Zugang zur zweiten Terrasse von 38 m². Bei dieser Wohnung sind die Terrassen nur zu 25 % berechnet Das Kinderzimmer/Büro von ca. 12 m², das Gäste-Duschbad, Diele und Abstellbereich vervollständigen das Angebot. Die gesamte Wohnfläche beträgt ca. 108 m².

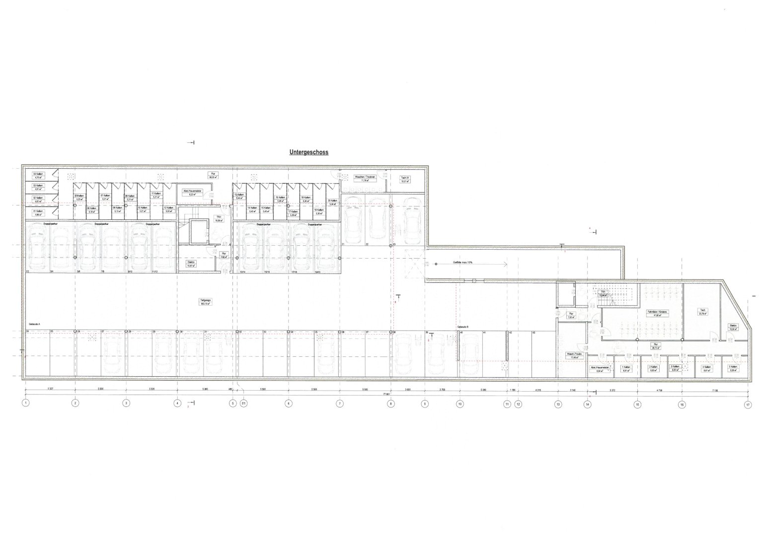
Jeder Wohnung ist ein Abstell/Kellerraum im Untergeschoß zugeordnet.
Gleichermaßen befinden sich im Kellergeschoß die Tiefgarage, Waschräume sowie der geräumige Fahrradbereich

Es besteht die Möglichkeit Tiefgaragenstellplätze ab 27.000 EUR oder Doppelparker für 20.000 EUR zu erwerben.

Der Baubeginn ist erfolgt. Die Fertigstellung ist für Ende 2023/Anfang 2024 geplant .
Der Energieausweis ist in Bearbeitung.



.
Modernes Wohnen in altersgerechter Ausführung im verkehrsberuhigten Innenbereich in Trier-Kürenz.

Vereinbaren Sie einen Beratungs bzw. Besichtigungstermin ! Gerne sind wir Ihnen bei der Gestaltung Ihrer Finanzierung behilflich. Auf Wunsch sowie bei entsprechender Bonität kann der Kaufpreis bis zu 100 % finanziert werden. Die Zinsen können z.B. auf die Dauer von 10 oder 15 Jahren festgeschrieben werden. Hierdurch können sich Ihre monatlichen Raten nicht verändern !

Weitere interessante Kauf- oder Mietangebote finden Sie unter www.scherf-immobilien.de

Details
Art des Inserats
Angebot
Objektnr_intern92792E5B08F0415F82FC6B5A279D3732
Anzahl Zimmer3 Anzahl Zimmer
Fläche (m²)106.89 (m²)
Miet/Kaufpreis (€)555800.00 (€)
Standort
Paulinstraße
54292 Trier
Inserat
Aufrufe
701
Beobachter
0
Erstellt am
26.10.2022
Inseratnummer
356
  1. Treffen Sie den Verkäufer an einem öffentlichen Ort wie der U-Bahn, Einkaufszentren oder Tankstellen
  2. Nimm jemanden mit und du wirst jeden treffen
  3. Überprüfen Sie das Produkt vor dem Kauf gut und stellen Sie sicher, dass der Preis stimmt
  4. Zahlen oder überweisen Sie kein Geld, bis Sie das Produkt gut sehen
555.800€
Nachricht senden
Telefon: +4*******
Als Echt Verifiziert
Norbert Scherf
Gewerblicher Nutzer
Aktiv seit: 09.09.2022
Facebook
Twitter
Instagram