Title
Mein Account
Einloggen
Kostenlos Registrieren
Merkliste
Meine Inserate
Meine Nachrichten
Mein Profil
Hilfe
  Gratis Inserat aufgeben
Deine Cookie-Einstellungen
Cookies – das sind kleine Textdateien, die auf deinem Endgerät abgelegt werden.Sie helfen dabei, unsere Website für Sie nutzungsfreundlich zu machen.Du kannst deine Auswahl jederzeit unter "Cookie-Einstellungen" bearbeiten am Seitenende ändern oder widerrufen.
Mehr Informationen finden Sie in unseren Datenschutzhinweisen.
Funktional
Erforderlich, damit Sie wichtige Seitenfunktionen nutzen können.
Statistik
Verbessert unser Angebot für Sie.
Marketing
Ermöglicht für Sie passende Informationen anzuzeigen.
  +4*******
Nachricht
  Zurück
Keys
0/0
PhotoPhotoPhotoPhotoPhotoPhotoPhotoPhotoPhotoPhotoPhotoPhoto

Sanierte Wohnung mit moderner Heiztechnik Bonn - KFW Darlehen 120.000 EUR + Zuschuß 18.000 EUR Bonn 53121

417.400€
Verdächtiges Inserat melden
Zur Merkliste hinzufügen
Beschreibung

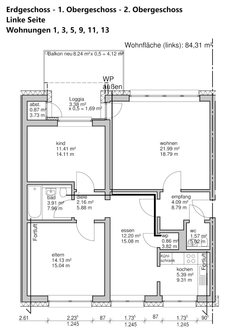
Fläche (Quadratmeter): 84
Anzahl Zimmer: 3
Standort: Am Klostergarten
53121 Bonn
Sanierte Wohnung mit moderner Heiztechnik Bonn - KFW Darlehen 120.000 EUR + Zuschuß 18.000 EUR
Bonn, Stadtteil Endenich. Es handelt sich um eine gefragte ruhige Wohnlage mit viel Grün und hohem Wohnwert. Die Endenicher "City" ist in wenigen Gehminuten erreichbar. Die beliebten Stadtteilzentren von Poppelsdorf und Endenich sowie der Venusberg sind fußläufig zu erreichen.
Bonn-Endenich liegt ca. 2 KM von der Bonner Innenstadt entfernt. Bonn-Endenich verfügt über gute Einkaufsmöglichkeiten sowie vielfältige Gastronomie und Freizeitmöglichkeiten. Ebenso ist eine sehr gute Anbindung an den öffentlichen Personennahverkehr gegeben. Mit den Anbindungen an die A 565 und B 56 ist Bonn-Endenich auch mit kurzen Wegen an zahlreiche Autobahnen angebunden.


Vollständig sanierte gut aufgeteilte Eigentumswohnung mit moderner Heiztechnik im KFW 55 Energiesparhaus in gefragter Wohnlage in Bonn-Endenich - Zinsgünstige KFW Darlehen von 120.000 EUR ab 2,21 % sowie Tilgungszuschuss von 18.000 EUR möglicVh
Umbau/Sanierung/Erweiterung und Aufstockung von 2 Gebäuden mit attraktiven Eigentumswohnungen mit moderner Technik in gefragter Wohnlage Bonn-Endenich mit guter Infrastruktur und viel Grün. Durch die hochwertige Außenisolierung, die 3-fach-Verglasung der Fenster und die moderne Beheizung mit wohnungsbezogenen Wärmepumpen in Verbindung mit Fußbodenheizung werden hier sehr niedrige Energiekosten bzw. Hausgeldkosten entstehen. Die Wärmepumpen haben auch für den Sommer eine Kühlfunktion zum Temperieren. Gleichermaßen erfolgt die Warmwasserbereitung über die Wärmepumpe entsprechend dem persönlichen Bedarf. Jeder Wohnungsnutzer kann mit seiner eigenen Wärmepumpe entsprechend den persönlichen Bedürfnissen heizen oder kühlen und rechnet seine Kosten direkt mit dem Versorger seiner Wahl ab. Hierdurch werden die Kosten eines Serviceunternehmens zur Heizkostenabrechnung gespart. Bei der Konzeption der Gebäude wurde besonderer Wert auf günstige Betriebs - und Folgekosten gelegt. Neben dem besonderen Heizsystem sind daher auch keine Aufzüge vorhanden. Der gute Energiestandard wird auch durch die Energieausweise mit der Klasse A + dokumentiert. Die Wohnungen wurden bis auf das Mauerwerk zurückgeführt. Das Dachgeschoß ist durch Aufstockung des vorhandenen Flachdachgebäudes vollständig neu entstanden. Alle Leitungen für Elektro, Heizung und Sanitär wurden vollständig erneuert. Gleichermaßen haben die Wohnungen einen neuen Estrich mit guten Schallschutzwerten erhalten. Alle Räume werden mit einer modernen Fußbodenheizung mit Einzelraumsteuerung entsprechend dem persönlichen Wohlbefinden durch die modernen Wärmepumpen vom Typ Daikin beheizt bzw. temperiert. Ebenso wird die Warmwasserversorgung durch die wohnungsbezogenen Wärmepumpen kostengünstig ausgeführt. Sie können bei der Versorgung der Wärmepumpen durch die vorhandenen 2 Stromzähler je Wohnung den günstigen Wärmepumpenstrom nutzen. Durch diese moderne Technik werden die Kosten eines Serviceanbieters für die Heizkostenabrechnungen erspart. Es ist eine gerechte Heizkostenzahlung garantiert. Ebenso wurden die Bodenbeläge als Vinylboden, Fliesen, Türen, Sanitärgegenstände und Malerarbeiten werden vollständig erneuert. Die großzügigen Balkone haben attraktive Glasgeländer erhalten, die der Wohnanlage eine schöne Optik geben.
Durch die hochwertige Sanierung und die interessante gefragte Lage ist eine hohe Wohnqualität gegeben. Zu jeder Wohnung gehört ein geräumiger Kellerraum. Ebenso sind je Haus ein Waschraum, ein Trockenraum sowie ein Fahrradraum mit separatem Zugang vorhanden.

Das Angebot bezieht sich auf die Wohnung 11 im 1. Obergeschoß des Hauses 11. Die Wohnung besteht aus dem attraktiven Wohnraum mit Zugang zum großzügigen Balkon. Von der zentralen Diele erreichen Sie das geräumige Elternschlafzimmer, das schönen Kinderzimmer/Büro, die Küche mit vorgelagertem Essplatz. Die Küche verfügt über eine Einbauküche. Das moderne Wannenbad, das Gäste-WC sowie der Abstellraum vervollständigen das Angebot.
Die Wohnfläche beträgt ca. 84,31 m².
Die Wohnung ist derzeit vermietet. Die Mieter bewohnen diese Wohnung seit Ende 2023 und haben von Mietvertrag von 28.12.2000 für eine andere Wohnung im Objekt entsprechend ergänzt. Eine Eigenbedarfskündigung ist entsprechend den gesetzlichen Bestimmungen möglich. Fragen Sie hier Ihren Anwalt.

Es besteht die Möglichkeit Fahrradboxen mit Stromanschluß für 6.000 EUR zu erwerben



Hohe Heizkosten ? ? Nein Danke ! Vollständig sanierte gut aufgeteilte Eigentumswohnung mit moderner Heiztechnik im KFW 55 Energiesparhaus in gefragter Wohnlage in Bonn-Endenich - Zinsgünstige KFW Darlehen von 120.000 EUR ab 2,21 % sowie Tilgungszuschuss von 18.000 EUR möglich
Umbau/Sanierung/Erweiterung und Aufstockung von 2 Gebäuden mit attraktiven Eigentumswohnungen mit moderner Technik in gefragter Wohnlage Bonn-Endenich mit guter Infrastruktur und viel Grün. Durch die hochwertige Außenisolierung, die 3-fach-Verglasung der Fenster und die moderne Beheizung mit wohnungsbezogenen Wärmepumpen in Verbindung mit Fußbodenheizung werden hier sehr niedrige Energiekosten bzw. Hausgeldkosten entstehen. Die Wärmepumpen haben auch für den Sommer eine Kühlfunktion zum Temperieren. Gleichermaßen erfolgt die Warmwasserbereitung über die Wärmepumpe entsprechend dem persönlichen Bedarf. Jeder Wohnungsnutzer kann mit seiner eigenen Wärmepumpe entsprechend den persönlichen Bedürfnissen heizen oder kühlen und rechnet seine Kosten direkt mit dem Versorger seiner Wahl ab. Hierdurch werden die Kosten eines Serviceunternehmens zur Heizkostenabrechnung gespart. Bei der Konzeption der Gebäude wurde besonderer Wert auf günstige Betriebs - und Folgekosten gelegt. Neben dem besonderen Heizsystem sind daher auch keine Aufzüge vorhanden. Der gute Energiestandard wird auch durch die Energieausweise mit der Klasse A + dokumentiert. Die Wohnungen wurden bis auf das Mauerwerk zurückgeführt. Das Dachgeschoß ist durch Aufstockung des vorhandenen Flachdachgebäudes vollständig neu entstanden. Alle Leitungen für Elektro, Heizung und Sanitär wurden vollständig erneuert. Gleichermaßen haben die Wohnungen einen neuen Estrich mit guten Schallschutzwerten erhalten. Alle Räume werden mit einer modernen Fußbodenheizung mit Einzelraumsteuerung entsprechend dem persönlichen Wohlbefinden durch die modernen Wärmepumpen vom Typ Daikin beheizt bzw. temperiert. Ebenso wird die Warmwasserversorgung durch die wohnungsbezogenen Wärmepumpen kostengünstig ausgeführt. Sie können bei der Versorgung der Wärmepumpen durch die vorhandenen 2 Stromzähler je Wohnung den günstigen Wärmepumpenstrom nutzen. Durch diese moderne Technik werden die Kosten eines Serviceanbieters für die Heizkostenabrechnungen erspart. Es ist eine gerechte Heizkostenzahlung garantiert. Ebenso wurden die Bodenbeläge als Vinylboden, Fliesen, Türen, Sanitärgegenstände und Malerarbeiten werden vollständig erneuert. Die großzügigen Balkone haben attraktive Glasgeländer erhalten, die der Wohnanlage eine schöne Optik geben.
Durch die hochwertige Sanierung und die interessante gefragte Lage ist eine hohe Wohnqualität gegeben. Zu jeder Wohnung gehört ein geräumiger Kellerraum. Ebenso sind je Haus ein Waschraum, ein Trockenraum sowie ein Fahrradraum mit separatem Zugang vorhanden.

Das Angebot bezieht sich auf die Wohnung 11 im 1. Obergeschoß des Hauses 11. Die Wohnung besteht aus dem attraktiven Wohnraum mit Zugang zum großzügigen Balkon. Von der zentralen Diele erreichen Sie das geräumige Elternschlafzimmer, das schönen Kinderzimmer/Büro, die Küche mit vorgelagertem Essplatz. Die Küche verfügt über eine Einbauküche. Das moderne Wannenbad, das Gäste-WC sowie der Abstellraum vervollständigen das Angebot.
Die Wohnfläche beträgt ca. 84,31 m².
Die Wohnung ist derzeit vermietet. Die Mieter bewohnen diese Wohnung seit Ende 2023 und haben von Mietvertrag von 28.12.2000 für eine andere Wohnung im Objekt entsprechend ergänzt. Eine Eigenbedarfskündigung ist entsprechend den gesetzlichen Bestimmungen möglich. Fragen Sie hier Ihren Anwalt.
Es besteht die Möglichkeit Fahrradboxen mit Stromanschluß für 6.000 EUR zu erwerben


Vereinbaren Sie einen Besichtigungstermin !
Gerne sind sind wir Ihnen bei der Gestaltung Ihrer Finanzierung behilflich.
Die Sanierung erfolgt unter Berücksichtigung der Anforderungen des Programms KFW 261 ? KFW Effizienzhaus 55. Bei diesem Programm haben Erwerber der Wohnungen die Möglichkeit ein Darlehen in Höhe der Höhe der nachgewiesenen energetischen Sanierungskosten von bis zu 120.000 EUR je Wohneinheit mit einer Festschreibung von 10 Jahren zu erhalten. Die Zinssätze richten sich nach dem Tilgungszeitraum und betragen derzeit: a) Bei einer Tilgung innerhalb von 10 Jahren 2,21 % b) Bei einer Tilgung innerhalb von 25 Jahren 2,79% c) Bei einer Tilgung innerhalb von 35 Jahren 2,96 %. Die Zinssätze verändern sich entsprechend den Vorgaben der KFW.
Neben den günstigen Zinsen gewährt die KFW beim Programm 261 einen Tilgungszuschuss von 15 % der anerkannten Kosten für die energetische Sanierung bis zu maximal 18.000 EUR.
Die Förderung ist an keine Einkommensgrenzen gebunden. Ebenso ist eine Förderung sowohl bei Eigennutzung als auch bei einer Vermietung ohne persönliche Auflagen möglich. Durch diese Finanzierungsmöglichkeiten werden die monatlichen Aufwendungen erheblich gesenkt.
Die KFW Darlehen können über die jeweils finanzierende Bank mit dem Sitz in Deutschland beantragt und abgewickelt werden.
Die erforderliche Bestätigung des Energieberaters kann zeitnah erstellt werden. Die KFW-Förderung muss vor Abschluss eines Kaufvertrages beantragt werden. Lassen Sie sich beraten!
Der Verkauf erfolgt für den Käufer provisionsfrei.

Weitere interessante Kauf- oder Mietangebote finden Sie unter www.scherf-immobilien.de


Details
Art des Inserats
Angebot
Objektnr_intern9DB340551AD64B7A90D883166EB89D7A
Anzahl Zimmer3 Anzahl Zimmer
Fläche (m²)84.31 (m²)
Miet/Kaufpreis (€)417400.00 (€)
Standort
Am Klostergarten
53121 Bonn
Inserat
Aufrufe
76
Beobachter
0
Erstellt am
28.09.2025
Inseratnummer
2465
  1. Treffen Sie den Verkäufer an einem öffentlichen Ort wie der U-Bahn, Einkaufszentren oder Tankstellen
  2. Nimm jemanden mit und du wirst jeden treffen
  3. Überprüfen Sie das Produkt vor dem Kauf gut und stellen Sie sicher, dass der Preis stimmt
  4. Zahlen oder überweisen Sie kein Geld, bis Sie das Produkt gut sehen
417.400€
Nachricht senden
Telefon: +4*******
Als Echt Verifiziert
Norbert Scherf
Gewerblicher Nutzer
Aktiv seit: 09.09.2022
Facebook
Twitter
Instagram